(주)승지디앤엠
마케팅사업부휴대폰010-3088-1007
대표번호1544-2605
당산역 1차 SK V1 tower
작성일 2024.03.20
작성자 관리자
| 분류 | 지식산업 분양 | 현장주소 | 서울 영등포구 당산동 5가 7-9 |
|---|---|---|---|
| 시행사명 | 영흥개발(주) | 시공사명 | 에스케이에코플랜트(주) |
| 분양대행사명 | (주)승지디앤엠 | 신탁사명 | 코리아신탁(주) |
| 건축규모 | 지하 5층, 지상 35층(옥탑 포함), 연면적 83,954.64㎡ | 대지면적 | 9,573.40㎡ |
| 현장형태 | 지식산업센터 | 홈페이지 | https://sjdnm.co.kr/ |
| 문의방법 | 전화문의 | 준공날짜 | 2026-06-30 |
| 현장 포인트 |
1. 도보 약 5분 거리 2, 9호선 당산역 더블 역세권
2. 당산을 대표할 SK V1 브랜드타운의 완성
3. 인접한 여의도 권역, 마곡지구, 상암 DMC는 물론 G밸리, 시청, 강남까지 접근
|
||
| 현장주소 | 서울 영등포구 당산동 5가 7-9 | ||
| 시공사명 | 에스케이에코플랜트(주) | ||
| 신탁사명 | 코리아신탁(주) | ||
| 대지면적 | 9,573.40㎡ | ||
| 홈페이지 | https://sjdnm.co.kr/ | ||
| 준공날짜 | 2026-06-30 | ||
담당자
(주)승지디앤엠
마케팅사업부휴대폰010-3088-1007
대표번호1544-2605
현장설명
당산역 역세권으로 강남을 가까이,
여의도 옆에서 비즈니스의 중심을 가까이,
넓은 서비스 면적과 혜택들로
지식산업센터의 가치를 높이다.
당산역 SK V1 타워!
배우 김상중이 추천 드립니다.
문의 1544-2605
당산역 SK V1 타워가 들어서는 영등포구는 노후 지식산업센터가 많아 신축 업무용 부동산에 대한 갈증이 높은 상황이지만
최근 분양중이거나 분양 예정인 지식산업센터가 적어
입주 시점인 2025~2026년에는 당산역 SK V1 타워의 희소가치가 높을 것으로 예상됩니다.
오늘보다 내일이 더 기대되는 당산역 SK V1 타워는 '입지 끝판왕'이라는 수식어가 따라다닐 정도로 업무여건도 눈에 띕니다.
먼저 서울 지하철 2·9호선 당산역이 바로 인접한 초역세권 지식산업센터 입니다.
당산역을 이용하면 5호선으로 환승 가능한 영등포구청역이 한 정거장(2분),
글로벌 IT·금융기업 등이 밀집해 있는 여의도역까지 한 정거장(4분)만에 이동할 수 있습니다.
특히 여의도역은 향후 수도권 광역급행철도 노선인 GTX-B노선(계획)과 신안산선 복선전철(예정) 등이 들어설 예정이어서 개통 시
수도권 전역으로 더욱 빠르게 이동할 수 있을 것으로 전망됩니다.
강변북로(1.9km, 10분), 올림픽대로(0.7km, 3분), 서부간선도로(1.2km, 6분), 경인고속도로(7.7km, 18분) 등의 도로를 이용해
차량으로도 여의도를 비롯한 서울 전역으로 쉽게 접근할 수 있습니다.


현장 조감도
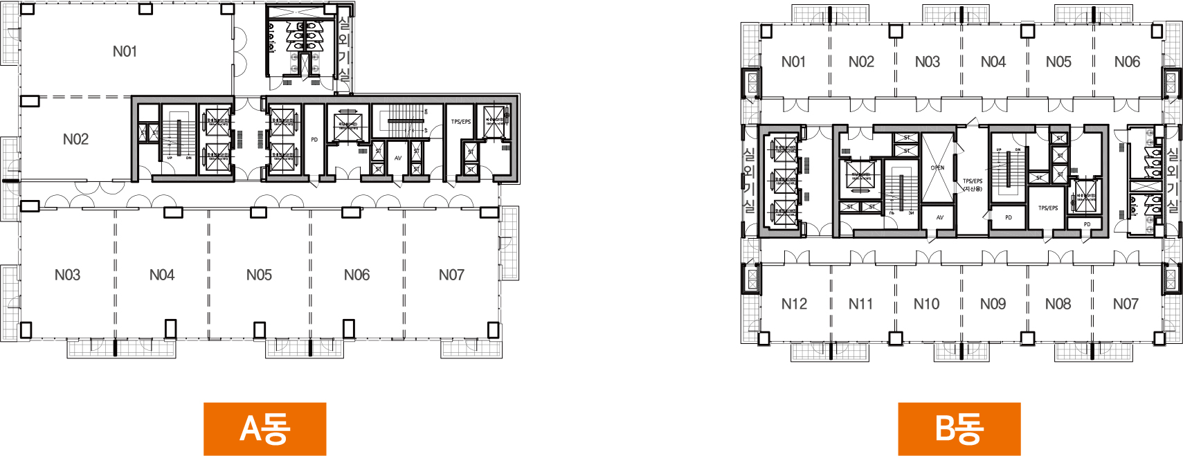
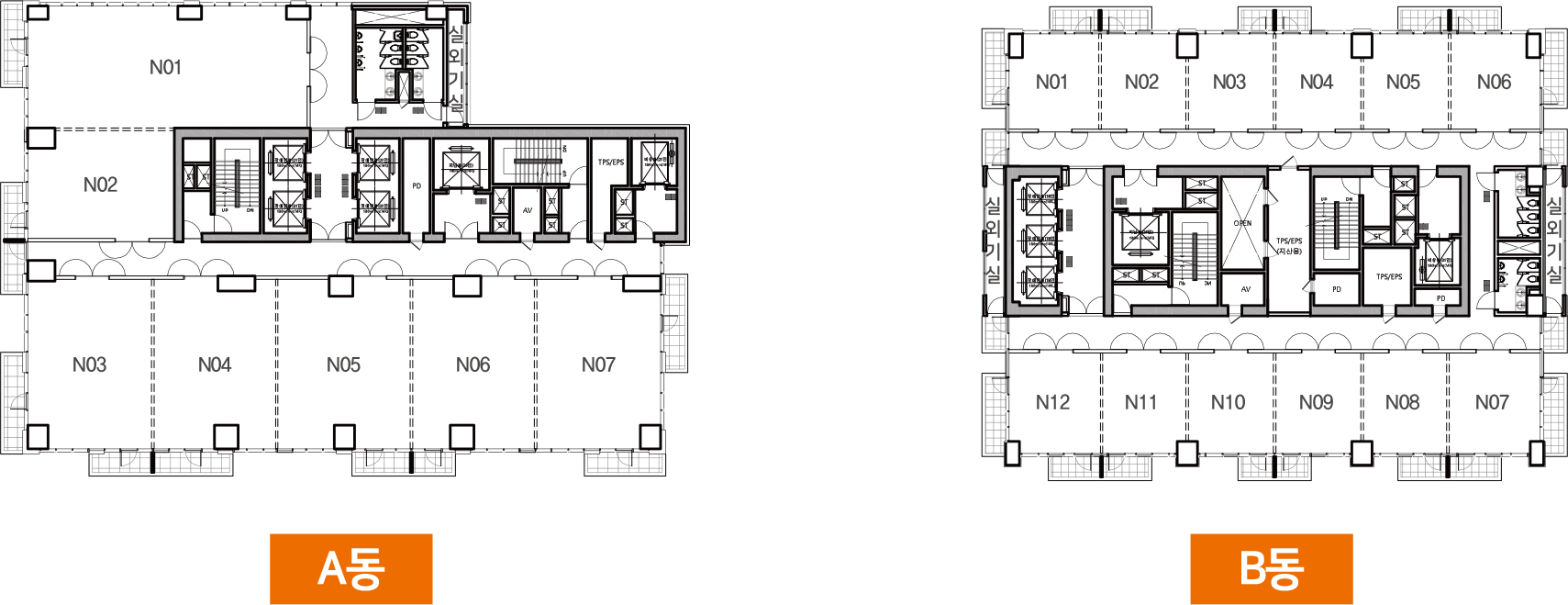
사이즈별 모델 이미지